Schäfer Deckenplatten

Messestand Entwurf für die Firma Schäfer Deckenplatten.

Visualisierung
Perspektiv-Ansicht des Messestand-Entwurfes

Perspektiv-Ansicht des Messestand-Entwurfes mit der Hausfarbe des Unternehmens.

Frontansicht
Frontansicht des Messestand-Entwurfes

Frontansicht des Messestand-Entwurfes

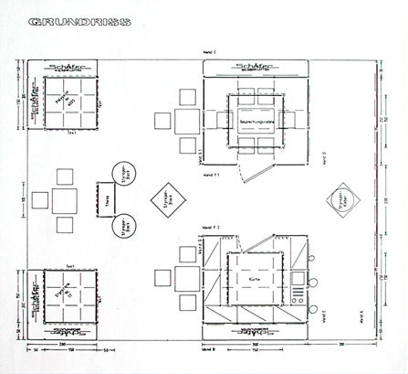
Grundriss
Grundriss des Messestand-Entwurfes

Grundriss des Messestand-Entwurfes

Seitenansicht
Seitenansicht des Messestand-Entwurfes

Seitenansicht des Messestand-Entwurfes

Wandabwicklung
Wandabwicklung des Messestand-Entwurfes

Wandabwicklung des Messestand-Entwurfes mit den Produkten der Firma.

Wenn Sie ähnliche Produkte in Planung haben, wenden Sie sich gerne an mich.

Kontaktformular

Wir freuen uns auf Ihre Nachricht!

Wie haben Sie von uns erfahren*